上の子が、ベルトを持ってきて言いました。
3Dプリンターで直して‼️ って

とりあえず分解


なるほど、かんたんだな
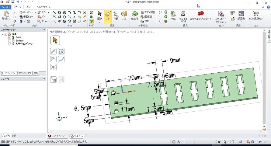
3DCAD設計
設計は、ノギスがあれば、簡単ですポイントは、穴を1mm程度大きめにつくります



3Dプリント
さてどんな感じになった
あ、
あぁぁぁぁぁ、
ダメだった。
曲げる力に非常に弱い

材質だけは、どうしようもないなぁ。。
壊れた断面をみていると、どうやら内部の格子部分が剥がれて壊れているようでした。
そこで、プリント時のインフィルを100%にして、格子を無くすことにしてみました。

結果として、簡単には折れないようになりましたが、かなり曲がりにくくなってしまいました。
もっといろいろな材料が使えると解決されるだろうな
コメント